Themabewertung:
  • 0 Bewertung(en) - 0 im Durchschnitt
  • 1
  • 2
  • 3
  • 4
  • 5
ChlangFun-Base
#41
Danke für die Blumen Smile.

Beim Pappenbattle hatte ich auch was in Richtung "Bodenport Hornreflex" vor.. Hab ich dann doch nicht gemacht. Wenns keinen Querschnittssprung geben soll, wird der Bodenabstand sehr eng, viel zu eng. Strömungstechnisch an der Stelle kaum schlimmer vorstellbar..:eek:...
[URL="http://www.igdh.eu"]
[IMGNR]http://www.igdh.eu/logo_igdh_mini.png[/IMGNR]
[/URL]
Zitieren

#42
Bizarre schrieb:Wenns keinen Querschnittssprung geben soll, wird der Bodenabstand sehr eng, viel zu eng. Strömungstechnisch an der Stelle kaum schlimmer vorstellbar..:eek:...
Da ich beim Reflexrohr ja schon 1/3 SD habe ist das an dieser Stelle nicht so schlimm bei dem oben gewählten Ansatz, das hat hier gut zusammengepasst, aber wirkliche Vorteile gegenüber "echtem BR" mit großem Querschnitt sehe ich jetzt nicht.

Grüße
Chlang

[SIZE=2]Alle selbst ernannten Götter werden dir zürnen, wenn du dich nicht von ihnen erlösen lässt.

[/SIZE]:dont_know:
Zitieren

#43
Hi Christian
Wie weit reicht das BR Rohr in die Box hinein ? Also wie lang ist das ?
Beste Grüße Smile
Jörn

what the bleep do we ... - listen to ?
Zitieren

#44
" …….
Dass die genannte Methode hier nicht passt, liegt, so glaube ich zumindest auf den ersten Blick, an der recht tiefen Abstimmfrequenz."

Hallo Christian,

Versuche es mal mit STEPS. Das sollte auch mit dem STIC noch stabile Messergebnisse liefern.

Gruß
Heinrich


Zitieren

#45
Joern schrieb:Wie weit reicht das BR Rohr in die Box hinein ? Also wie lang ist das ?
Hallo Jörn,

das waren für die gezeigten Messungen 12 cm Rohrlänge und damit in der Box (abzüglich der Wandstärke) 10 cm .


ente schrieb:Versuche es mal mit STEPS. Das sollte auch mit dem STIC noch stabile Messergebnisse liefern.
Danke, Heinrich!

Ich bezog mich bei meiner Bemerkung auf die im Arta-Handbuch genannte Methode (Pegelanpassung im Bereich gleicher Volumenflüsse), die Skalierung von Port- und Chassismessungen über den annähernd gleichen Pegel deutlich unterhalb der Abstimmfrequenz vorzunehmen.
Willst du mit deiner Empfehlung andeuten, dass ggf. der Stic bzw. Arta bei so tiefen Frequenzen im Impulsverfahren nicht mehr ausreichend exakt messen? Bisher schienen mir die Ergebnisse immer plausibel.

Grüße
Chlang

[SIZE=2]Alle selbst ernannten Götter werden dir zürnen, wenn du dich nicht von ihnen erlösen lässt.

[/SIZE]:dont_know:
Zitieren

#46
Hallo Christian,

STEPS ist für die Volumenflussmethode besser geeignet, da weniger anfällig für äußere Störungen ist
und demzufolge für sehr tiefe Frequenzen auch stabilere Ergebnisse liefert.
Probiere es aus, auch wenn es etwas dauert!

Gruß
Heinrich
Zitieren

#47
Hallo zusammen,

eigentlich sollte die Flächenskalierung und die Volumenflussmethode ja die gleichen Ergebnisse liefern. Warum die Flächenskalierung gar nicht so einfach ist und oft daneben liegt, dass möchte ich hier gerne zeigen. Die Volumenflussmethode ist dabei immer gleich einfach zu realisieren - einfach die Kurven im unteren Frequenzbereich übereinander legen.

Ich glaube steps ist dazu gar nicht nötig, die Messungen sind ja im Nahfeld und haben auch hier bei Chlangs Messungen einen guten SNR, die sind kein bißchen verrauscht. Man sollte sie jedoch früher starten lassen, z.B. bei 10Hz oder gar 5Hz, da hier eine recht tiefe Abstimmfrequenz vorliegt.

So aber nun zur Flächenskalierung:

Dazu stellen wir uns folgende Fälle vor - nein, das soll jetzt kein Test werden und keiner muss irgendeine Frage beantworten - wir spielen das nur mal gemeinsam durch. Also...folgende Fälle:

[ATTACH=CONFIG]52797[/ATTACH]

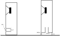
Links eine ganz normale BR Box auf dem Boden stehend. Rechts daneben, das gleiche Rohr, gleiche Box, aber auf 1m hohem Ständer. Die Mikrofonpositionen und Flächen für die Flächenskalierung sind ja hier eindeutig, oder? (Antwort: ja Wink )

Also schnell zum nächsten Fall, der soll jetzt unseren Fal hier darstellen:

[ATTACH=CONFIG]52798[/ATTACH]


Links ist wieder eindeutig...rechts auch, oder? Da wir ja jetzt eine neue Austrittsfläche haben, nutzen wir diese zur Skalierung und platzieren auch das Mikrofon in der entsprechenden Ebene. Ist doch klar, oder? Bevor wir diese Frage jetzt auch mit "Ja" beantworten, schauen wir uns lieber schnell die folgenden Fälle an. Oder andersrum...alle die jetzt vorschnell mit "Ja, ist doch klar und eindeutig" geantwortet haben, können bitte in folgende Skizze die entsprechenden Mikrofonpositionen und zur Berechnung korrekten Flächen eintragen:

[ATTACH=CONFIG]52799[/ATTACH]

Wann wird also welche Position und welche Fläche genutzt? Das ist nämlich nicht eindeutig, da die Übergänge, wie so oft in der Akustik, fließend sind. Kommen wir also nun wieder zu unserem Fall zurück:

[ATTACH=CONFIG]52800[/ATTACH]

Nutzen wir also zur Flächenmethode den linken Fall mit 800 cm^2 oder den rechten Fall mit 300cm^2? Die Frage ist nun nicht mehr so eindeutig und leicht zu beantworten, oder? Die richtige Antwort leider auch nicht, die ist nämlich: "Irgendwas dazwischen!"

Also wir können hier nun die richtige Fläche raten...oder einfach die Volumenflussmethode nutzen Wink Also Mikroposition würde ich hinter der Box messen und in der Ebene die hier links eingezeichnet ist, also in der "zweiten", großen Austrittsfläche.


Dann noch kurz was zu meinem ersten Post, der wurde glaub etwas missverstanden. Der Fall der Bodenaufstellung stellt keinesfalls den "besseren" Fall dar, er ist schlicht anders. Für die Funktionsweise des Resonators ist die freie Variante besser - der Sprung in der Strahlungsimpedanz fällt größer, deutlicher aus und somit kann der Helmholtzresonator besser wirken. Die Bodenaufstellung hingegen bewirkt, dass der Resonator breitbandiger wirkt und auch den Raum anders anregt. Was jetzt "besser" ist, würde ich von Fall zu Fall entscheiden, das ist sogar noch Raum- und aufstellungsabhängig.

Grüße
Andreas


Angehängte Dateien Thumbnail(s)
               
----------------------------------------------
Dausend Acoustics - Ingenieurbüro für Akustikentwicklungen
www.dausend-acoustics.com
gewerblicher Teilnehmer

[FONT=&quot][URL="https://www.instagram.com/dausend_acoustics?r=nametag"]https://www.instagram.com/dausend_acoustics?r=nametag
https://www.facebook.com/dausendacoustics/

[/URL][/FONT]
Zitieren

#48
Wow, danke Andreas! Astrein erklärt!
Die Gedanken sind frei, wer kann sie erraten, sie fliehen vorbei, wie nächtliche Schatten.
Kein Mensch kann sie wissen, kein Jäger erschießen. Es bleibet dabei: Die Gedanken sind frei.

Liebe Grüße Willi
Zitieren

#49
Hey Andreas,

vielen Dank für die ausführliche und aufwändig bebilderte Erklärung! Schön, dass sich das Posten und Lesen hier immer wieder lohnt.

Dausend Acoustics schrieb:...Man sollte sie jedoch früher starten lassen, z.B. bei 10Hz oder gar 5Hz, da hier eine recht tiefe Abstimmfrequenz vorliegt...
Genau das war mein Problem, dass es hier nicht gepasst hat. Bei der relativ tiefen Abstimmfrequenz und dadurch, dass ich die Messungen standardmäßig erst bei 20 Hz loslaufen ließ, war da mit Pegelangleichung nicht mehr viel zu machen. Auf das letzte dB kommt es jetzt ja auch noch nicht an - die prinzipiellen Unterschiede (vorallem in dem, was aus dem Reflexteil kommt) sollten auch so deutlich geworden sein.

Dausend Acoustics schrieb:Dann noch kurz was zu meinem ersten Post, der wurde glaub etwas missverstanden. Der Fall der Bodenaufstellung stellt keinesfalls den "besseren" Fall dar, er ist schlicht anders. Für die Funktionsweise des Resonators ist die freie Variante besser - der Sprung in der Strahlungsimpedanz fällt größer, deutlicher aus und somit kann der Helmholtzresonator besser wirken. Die Bodenaufstellung hingegen bewirkt, dass der Resonator breitbandiger wirkt und auch den Raum anders anregt. Was jetzt "besser" ist, würde ich von Fall zu Fall entscheiden, das ist sogar noch Raum- und aufstellungsabhängig.
Genau - deshalb gibt's jetzt diese (oben schon verlinkte) BR-Variante als Testbox:

[Bild: attachment.php?attachmentid=52715&d=1580644405&thumb=1]
Skizze BR-Testbox

Und was soll ich sagen? Jetzt hört sich das so an, wie ICH es von einem 15" PA-Treiber erwarte. Auch schon mit zu tiefer Abstimmung puncht das sehr schön - aber da geht sicher noch was...
... ich halte euch auf dem Laufenden.

Grüße
Chlang

[SIZE=2]Alle selbst ernannten Götter werden dir zürnen, wenn du dich nicht von ihnen erlösen lässt.

[/SIZE]:dont_know:
Zitieren

#50
Chlang schrieb:... ich halte euch auf dem Laufenden.
Gemessen habe ich jetzt auch schon mal Nahfeldfrequenzgänge (wieder flächenskaliert, weil für Volumenmethode zu tief abgestimmt) und Impedanzverlauf.

[ATTACH=CONFIG]52835[/ATTACH]
Nahfeldfrequenzgänge der BR-Testbox

[ATTACH=CONFIG]52836[/ATTACH]
Impedanzverlauf (Stepped Sine) der BR-Testbox

Jetzt werde ich mich mal der geplanten Abstimmfrequenz von knapp 40 Hz nähern und zudem kann ich mich der Resonanz bei 350 Hz widmen, die ziemlich exakt zur Gehäusetiefe und der Anordnung der inneren Öffnung des Reflexkanals passt...

Stay tuned.

Grüße
Chlang


Angehängte Dateien Thumbnail(s)
       

[SIZE=2]Alle selbst ernannten Götter werden dir zürnen, wenn du dich nicht von ihnen erlösen lässt.

[/SIZE]:dont_know:
Zitieren

#51
Wenn ichs richtig verstanden hab, sitzt der BR Kanal voll um Druckmaximum "längs", und zum Teil auch "quer".. Die Stehwellen liegen beide um die 350Hz rum.. Und kommen so (zu) stark zum Vorschein...

230Hz ist die Stehwelle "hoch". Da sitzt der BR im Schnellemaximum, was offensichtlich positiv ist.
[URL="http://www.igdh.eu"]
[IMGNR]http://www.igdh.eu/logo_igdh_mini.png[/IMGNR]
[/URL]
Zitieren

#52
Hallo Christian,

wieso zu tief abgestimmt für die Volumenflussmethode?
Habe gerade meinen Stic herausgesucht und eine Probemessung im NF gemacht.
Mit ARTA ab ca 15 Hz stabile Ergebnisse, mit STEPS ab 5 HZ.
STEPS sollte in jedem Fall für die Volumenflussmethode genügen.

Gruß
Heinrich
Zitieren

#53
ente schrieb:wieso zu tief abgestimmt für die Volumenflussmethode?
Habe gerade meinen Stic herausgesucht und eine Probemessung im NF gemacht.
Mit ARTA ab ca 15 Hz stabile Ergebnisse, mit STEPS ab 5 HZ.
OK, OK, überzeugt, Heinrich :o

Arta (1.9.1) geht bei der Cutoff-Frequenz automatisch zurück auf 20 Hz, wenn ich eine tiefere Frequenz einstelle, und da bin ich davon ausgegangen, dass drunter nicht mehr viel zu wollen ist. Anzeigen lassen kann ich mir aber durchaus Frequenzen bis ca. 15 Hz runter.

[ATTACH=CONFIG]52839[/ATTACH]
SPL obige Nahfeldmessung ab 10 Hz dargestellt

Hier sieht man schön, dass der BR-Anteil von mir ca. 2 dB zu leise skaliert wurde - die Summenkurve würde also eigentlich noch besser aussehen. Das nächste Mal werde ich das berücksichtigen.

Steps habe ich noch gar nicht freigeschaltet, seit ich das letzte Update gemacht habe. Verzerrungsmessungen sind mit der Stic-Hardware nicht so wirklich sinnvoll machbar, weshalb ich noch keinen Drang hatte, mit Steps zu messen. Aber vielleicht lege ich da auch nochmal los...

Grüße
Chlang


Angehängte Dateien Thumbnail(s)
       

[SIZE=2]Alle selbst ernannten Götter werden dir zürnen, wenn du dich nicht von ihnen erlösen lässt.

[/SIZE]:dont_know:
Zitieren

#54
Chlang schrieb:Das nächste Mal werde ich das berücksichtigen.
Die Neugierde hat gesiegt und ich habe nochmal schnell nach Volumenmethode skaliert...

[ATTACH=CONFIG]52838[/ATTACH]
SPL obige Nahfeldmessung ab 10 Hz dargestellt und nach Volumenmethode skaliert Wink

Grüße
Chlang


Angehängte Dateien Thumbnail(s)
   

[SIZE=2]Alle selbst ernannten Götter werden dir zürnen, wenn du dich nicht von ihnen erlösen lässt.

[/SIZE]:dont_know:
Zitieren

#55
Super :prost:

Da seh ich gerade...in den Messungen sind es nur ~9Hz Messauflösung. Wäre natürlich gut, da etwas höhere Auflösung zu haben - dazu musst du in Arta glaub nur die FFT Länge vergrößern unter Setup->Analysis Paramter ändern (auf 16k z.B.). Vorausgesetzt natürlich der sweep ist ebenfalls lange genug.

Grüße
Andreas
----------------------------------------------
Dausend Acoustics - Ingenieurbüro für Akustikentwicklungen
www.dausend-acoustics.com
gewerblicher Teilnehmer

[FONT=&quot][URL="https://www.instagram.com/dausend_acoustics?r=nametag"]https://www.instagram.com/dausend_acoustics?r=nametag
https://www.facebook.com/dausendacoustics/

[/URL][/FONT]
Zitieren

#56
Dausend Acoustics schrieb:... nur die FFT Länge vergrößern unter Setup->Analysis Paramter ändern (auf 16k z.B.)...

32k waren kein Problem bei 64k Sequence Length :prost:

Und so langsam glaube ich, dass ich mit der Abstimmung da bin, wo ich hin wollte.

[ATTACH=CONFIG]52883[/ATTACH]
Impedanzverlauf (Stepped Sine) der BR-Testbox 20cm Kanallänge

[ATTACH=CONFIG]52882[/ATTACH]
Nahfeldfrequenzgänge der BR-Testbox 20cm Kanallänge (Volumenskaliert und Bafflestepkorrektur)

Die Abstimmfrequenz liegt knapp unter 40 Hz und der Frequenzgang fällt bis dahin um ca. 6 dB. Würdet ihr an der Abstimmung noch was ändern und wenn ja, in welche Richtung und warum?

Das Trumm klingt trotz der fehlenden Höhen und der noch nicht bekämpften Resonanzen schon solo ganz anhörbar, so dass ich guter Dinge bin, eine schöne Basis für die weitere Entwicklung schaffen zu können.

Als nächstes werde ich versuchen, die messbaren Resonanzen zu minimieren...

Grüße
Chlang


Angehängte Dateien Thumbnail(s)
       

[SIZE=2]Alle selbst ernannten Götter werden dir zürnen, wenn du dich nicht von ihnen erlösen lässt.

[/SIZE]:dont_know:
Zitieren

#57
Chlang schrieb:Als nächstes werde ich versuchen, die messbaren Resonanzen zu minimieren...
Hallo Kollegen,

hat ein Bisschen gedauert, bis ich eine einfache, kostengünstige und reproduzierbare Bedämpfungslösung gefunden habe, die kaum Tiefbass kostet, aber die Gehäuseresonanzen weitgehend schluckt.

Damit bin ich jetzt zufrieden:

[ATTACH=CONFIG]52970[/ATTACH]
Beidseitig offener, locker mit Polywatte gefüllter IRR (10cm Durchmesser, 50cm Länge) mit 2 Lagen Polywatte umwickelt

Die Nahfeldmessung am BR-Kanal kann sich meiner Meinung nach sehen lassen:

[ATTACH=CONFIG]52971[/ATTACH]
SPL Nahfeldmessung BR-Kanal ohne (blau) und mit obiger Bedämpfung (rot)

Die Wirkung (Bedämpfung) der Maßnahme kann man zeigen, indem man die Variante ohne Bedämpfung von der bedämpften abzieht, was im Folgenden zu sehen ist:

[ATTACH=CONFIG]52972[/ATTACH]
Wirkung obiger Bedämpfung im Nahfeld am BR-Kanal gemessen

Es freut mich sehr, dass mit so wenig Einsatz sowohl die Längsresonanz des Gehäuses bei 240 Hz als auch die beiden Querresonanzen bei 360 Hz um bis zu 10 dB vermindert werden und damit mindestens 13 dB unter dem Nutzsignal liegen, wobei dieses praktisch nicht beeinflusst wird.
Da ich jetzt deutlich weniger Dämpfungsmaterial in der Box habe, als ich vorher zur Sicherheit bei der Abstimmung drin hatte, muss ich jetzt möglicherweise erstmal neu Abstimmen und den BR-Kanal wieder etwas verlängern (das werden wir recht schnell sehen). Danach geht's dann endlich zum Messen in die Turnhalle, was dann wohl wieder ein Bisschen länger dauern wird Confusedchnarch:

Grüße
Chlang,

der jetzt wieder voll motiviert ist und sich schon ernsthafte Gedanken zum ChlangFun-Top macht!


Angehängte Dateien Thumbnail(s)
           

[SIZE=2]Alle selbst ernannten Götter werden dir zürnen, wenn du dich nicht von ihnen erlösen lässt.

[/SIZE]:dont_know:
Zitieren

#58
Sieht top aus, der Nutzpegel ist kaum vermindert... Auf den ersten Blick täuscht das Foto, so "leer" ist die Kiste nicht, das "Röhrchen" ist ein halber Meter DN100.. .

Ich versuch gerade, mir die Wirkung der diagonal angeordneten beidseitig offenen "Pfeife" als Absorber vorzustellen.. Scheint ja recht effektiv zu sein.....
[URL="http://www.igdh.eu"]
[IMGNR]http://www.igdh.eu/logo_igdh_mini.png[/IMGNR]
[/URL]
Zitieren

#59
Bizarre schrieb:Ich versuch gerade, mir die Wirkung der diagonal angeordneten beidseitig offenen "Pfeife" als Absorber vorzustellen.. Scheint ja recht effektiv zu sein.....
Stelle dir in der Mitte der Röhre einfach eine Trennwand vor, Manfred - dann hast du zwei 1/4-Wellen-Absorber, und da sie in diagonalen Ecken sitzen, werden sie in jeder Richtung angeregt.

Die Wirkung kann man natürlich auch im Impedanzverlauf sehen:

[ATTACH=CONFIG]52973[/ATTACH]
Impedanzverlauf (Pink Noise) mit (grün) und ohne oben gezeigter Bedämpfung (gelb)

Bin gerade am neu Abstimmen, daher die Impedanzmessungen als "Abfallprodukt"...

Grüße
Chlang


Angehängte Dateien Thumbnail(s)
   

[SIZE=2]Alle selbst ernannten Götter werden dir zürnen, wenn du dich nicht von ihnen erlösen lässt.

[/SIZE]:dont_know:
Zitieren

#60
Moin Christian,
Dein IRR sieht wirklich gut aus !

Fragen:
Warum hast Du denn Dämmmaterial herausgenommen?
Ist es beim Subwoofer nicht sinnvoller, selbigen an seinem endgültigen Aufstellungsort im Raum zu messen, um dann die Kanallänge / Portabstimmung daraufhin anzupassen? Könnte mir vorstellen, dass Du am endgültigen Aufstellungsplatz im Raum (an einer Wand / in einer Raumecke) anders (tiefer) abstimmen musst, als in der Turnhalle, die Du mir ja sowieso erstmal vorbeischicken wolltest - Stichwort 4 Ecken, 4 Räder ... Smile

Edith fragt gerade, ob Du evtl. 1-2 Bilder vom Inneren des IRR preisgeben könntest, moniert aber gleichzeitig, dass Du beim verw. Holz (Rohspan) aber seeehr sparsam warst und erwartet diesbezüglich noch einiges an Gehäusewand-Dämmung wie z.B. Trittschalldämmung etc., bzw. Verstrebungen. :p
Es ist einfacher die Leute zu täuschen,
als sie davon zu überzeugen,
dass sie getäuscht wurden. (Mark Twain)

Audioviele Grüße,
Matthias
Zitieren



Möglicherweise verwandte Themen…
Thema Verfasser Antworten Ansichten Letzter Beitrag
  ChlangFun Chlang 99 53.753 17.04.2010, 22:22
Letzter Beitrag: Chlang

Gehe zu:


Benutzer, die gerade dieses Thema anschauen:
1 Gast/Gäste

Deutsche Übersetzung: MyBB.de, Powered by MyBB, © 2002-2026 Melroy van den Berg.