Themabewertung:
  • 0 Bewertung(en) - 0 im Durchschnitt
  • 1
  • 2
  • 3
  • 4
  • 5
Monacor HQ Chassis - neue Projekte
#1
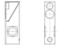
Ich bin gerade dabei eine neue größere Standbox zu entwickeln.

Hier schon mal eine Vorab-Skizze:

Das Konzept sieht dem der Raduno recht ähnlich - es kommen aber ganz andere Chassis zum Einsatz.

Bass: 2 x SPH-225C in impulskompensierender Anordnung
Mittelton: SPH-220HQ in geschlossenem Gehäuse
Hochton: DT-254 im WG-300 mittels Adapterplatte auch in abgetrenntem Gehäuse

Dazu gibt es folgende Konzeptionsideen von mir.

Variante 1: komplette Aktivierung mittels 3 Kanal-DSP pro Box (DSM-260 bzw. ab sofort DSM-260LAN))

Variante 2: Aktivierung mit einem neuen aktiven 2 Kanal-DSP-Modul. Ein Kanal für die Bässe und der 2. Kanal für den Hoch und Mitteltöner. Dazu muß eine einfache passive Trennung zwischen Hoch-und Mitteltöner vorgesehen werden. Die engültige Abstimmung wird dann mittels DSP gemacht.

Variante 3: Teilaktivierung mit dem klassischen SAM-2 Modul was allerdings eine aufwändigere passive Filterung des Mittel-Hochtonzweigs erfordert.

Variante 4 rein passiv würde nur sinnvoll funktionieren wenn die beiden Bässe auch auf die Front wandern da eine passive Trennung um 100 Hz kaum sinnvoll machbar ist.

Die beiden SPH-225C laufen in ca. 50 Liter mit einer im Normalfall zu tiefen Bassreflexabstimmfrequenz von ca. 32 - 35Hz. Der damit einhergehende Bassabfall kann mit dem SAM-2 und dem DSP-Modul ausgeglichen werden und ermöglicht damit eine lineare Basswiedergabe bis unter 35 Hz.

Meinungen?


Angehängte Dateien Thumbnail(s)
   
Zitieren

#2
Moin Franky,

Variante 1 würde wohl das MAXIMUM aus den Chassis/konstruktion hohlen.


Ich favorisiere aber Variante 2.

- Weil man hier eine Endstufe sparen kann, und bei vernüftiger passiven Trennung, den Rest mit DSP hinbiegen kann, wie man mag.

Gruss Gino
Zitieren

#3
Was mir gerade einfällt.

Wenn man keinen Vorverstärker oder einen auftrennbaren Verstärker hat kann man sich auch mit dem SAM-2 behelfen. Man geht mit Hochpegel in das SAM-2 rein und kann dann an dem einstellbaren SAT-Out ein Line Signal für einen weiteren Verstärker abgreifen. Das geht also nicht nur über die Cinch-Eingänge.

So fahren wir z.B. die Lightning mit den Wildthings an der Umschaltanlage.
Zitieren

#4
Hmmm... Das ist natürlich gut.....ich glaub das bei den meisten DSP gesteuerten Systemen die Materialschlacht/Aufwand ein bissel abschreckt.

Daher wäre die Variante mit dem Sam 2 kompakter,weil man es halt ins Gehäuse einbaut. Trotzdem muss noch ein 2ter Amp fur die MT/HT Einheit her.
Zitieren

#5
Nabend,
sehr interessantes Projekt!
Als teilkundiger Laie mich frage ich mich warum Du so einen stattlichen Mt einsetzt (anstatt zB. den 145HQ)? mehr Membranfl.?
Bzgl. Dt254 ans WG bekommen: Hören/Messen sich die beiden Varianten
1. Adapterplatte á la Olli oder 2. Deine Klebemethode ähnlich?

Gruß und frohes Entwickeln,
Daniel
Zitieren

#6
Ich verwende ja auch jetzt die Platte von Olli. Ich bin der Meinung das Membranfläche gerade im Mitteltonbereich zu einem eher souveränen Klangbild führt. Und der SPH-220HQ hat echte Breitbandqualitäten ohne Nachteile. Die DT-254 am WG kann locker ab 1500 Hz eingesetzt werden.
Er kann halt nur nicht weit über Xmax - dafür ist ja dann der integrierte Sub da.
Und der kann wenn gefordert mächtig aufspielen.
Zitieren

#7
Hallo,

Franky schrieb:Die beiden SPH-225C laufen in ca. 50 Liter mit einer im Normalfall zu tiefen Bassreflexabstimmfrequenz von ca. 32 - 35Hz. Der damit einhergehende Bassabfall kann mit dem SAM-2 und dem DSP-Modul ausgeglichen werden und ermöglicht damit eine lineare Basswiedergabe bis unter 35 Hz.

Wäre es besser (Resonanzen, Verlustfaktor), das Bassgehäuse einfach in der Mitte in zwei gleiche Gehäuse zu teilen?

Eine zu tiefe Bassreflexabstimmung und der Bassabfall könnten vielleicht auch ohne Anhebung für wandnahe Aufstellung passen. Gibt es aber bei der Vorgehensweise mit der tiefen Reflexabstimmung Probleme mit relativ viel "group delay"?

LG
Zermatt
Zitieren

#8
je fehlabgestimmter umso besser wird es. Man nähert sich geschlossenen Gehäusen. Mit dem DSP kann man fast alles ausgleichen. Alles andere muß man messen. Daher ist auch der getrennte Aufbau im Tiefbass nicht schlechter, kostet aber Volumen und wird wahrscheinlich nix bringen. Der Gegenseitige Einbau (BMW Boxer Prinzip) ist z.B. viel besser als wenn die beiden Chassis auf der Front montiert wären. Ausserdem mag ich nicht solche materialistischen Fronten.

Wer sich den Vorschlag ansieht wird sehen das da eine doppelte Schallwand vorgesehen ist. Ich werde die aus Glas oder Stein machen lassen. Die Bässe an den Seiten sind so eingebaut das sie mit einem feinen Gitter abgedeckt werden können welches natürlich auch entsprechend lackiert werden kann.
Was ich damit sagen will - diese Box soll richtig gut werden was Akustik und Optik anbetrifft.
Zitieren

#9
Franky schrieb:Der Gegenseitige Einbau (BMW Boxer Prinzip) ist z.B. viel besser als wenn die beiden Chassis auf der Front montiert wären.


Da hatte ich eine andere Teilung gemeint, einfach ein zusätzliches Brett entlang der Mittelachse, also zwischen den Magneten. Erfodert dann allerdings zwei Reflexrohre.

Den gegenüberliegenden Einbau finde ich gut und bei steiler aktiver Trennung wird es mit den restlichen noch seitlich abgestrahlten höheren Frequenzen wohl auch ok sein.

Franky schrieb:je fehlabgestimmter umso besser wird es.
Hab ich nochmals mit WinISD in Simulationen angeschaut. Die Verzögerung nimmt offenbar an der Abstimmfrequenz deutlich zu, aber darüber auch etwas ab. Also scheint die Vorgehensweise dann besonders geeignet, wenn die Abstimmfrequenz ausserhalb (tiefer) der genutzen Frequenzen liegen kann.
Zitieren

#10
Ich weiß wie Du das mit der Teilung gemeint hast. Das Mittelbrett nimmt aber wieder Volumen weg. Die Box wird sowieso nicht klein und da ja heute soviel über WAF geredet wird muß man das berücksichtigen.

Ursprünglich wollte ich ja in Richtung der Grimm Audio. Ich habe es mir aber nochmal anders überlegt.

Mir gefällt auch Hochtöner oben optisch besser wie unten obwohl es Nachteile haben kann die aber durch das Waveguide nicht so ins Gewicht fallen.
Zitieren

#11
Franky schrieb:DSM-260 bzw. ab sofort DSM-260LAN

Hallo Frank,

die DSM-260 findet man nicht (mehr) auf eurer Homepage, die DSM-260LAN (noch) nicht.

Verräts du uns etwas mehr?

Grüße Ralf
Zitieren

#12
Moin,

die DSM-260LAN sollen Ende August am Lager sein.

Gruß Frank
Zitieren

#13
Hallo Frank,
schönes Projekt. Ich würde auch Teilaktiv oder ganz aktiv bauen.
Der 220HQ läuft ja sauber bis ca 3KHZ, so dass man den in ein 2 Wege Konzept nehmen kann.
Der 145 HQ hat in meiner Box bereits um die 2 KHZ einen Schalldruckabfall, der bis 5 KHZ bleibt und dann rapide weiter abfällt. Daher habe ich auch eine 25er Kalotte als HT verwendet.
Ich denke aber, das das Rundstrahlverhalten mit dem 145er besser klappen könnte als nur mit dem 220HQer, hab dieses so aber noch nicht getestet, weil ich den 220HQer bei mir bei ca 300-400 Hz aus dem Spiel nehme.

Dürfte aber auf jeden Fall ein Konzept für höhere Pegel auf hohem Klanglichem Niveau werden.



Mfg
Olaf
PS weil offtopic:
Mir reicht 1x220HQ in meinem Hörraum pro Box vollkommen aus Smile
Anbei meine Messung vom 220HQ in ca. 35 Liter geschl. Volumen, der Schalldruck ist nicht kalibriert gewesen, daher bitte den Pegel nicht beachten


Angehängte Dateien Thumbnail(s)
   
In Hamburg sagt man, Moin , LG Olaf_HH
Zitieren

#14
Franky schrieb:Der Gegenseitige Einbau (BMW Boxer Prinzip) ist z.B. viel besser als wenn die beiden Chassis auf der Front montiert wären. Ausserdem mag ich nicht solche materialistischen Fronten.

Die Bässe an den Seiten sind so eingebaut das sie mit einem feinen Gitter abgedeckt werden können welches natürlich auch entsprechend lackiert werden kann.
Was ich damit sagen will - diese Box soll richtig gut werden was Akustik und Optik anbetrifft.
Hallo Franky,

das könnte was werden... Wink

http://abload.de/img/1x3ouk.jpg

Die hatte ich auf dem letzten Frickelfest mit. Als Mitteltöner ist aber ein 7"er eingesetzt.
Gruß

Jesse Cool Good Vibration




Die Realität ist in Wirklichkeit etwas komplizierter.
Zitieren

#15
Hallo Olaf,

an einer kleinen Version ist ja auch Hoschibil dran. Der hat zu Versuchszwecken den SPH-220HQ einfach Fullrange betrieben und den Hochtöner nur mit 6 dB angekoppelt haben. Soll verblüffend gut geklungen haben.

Hi Jesse, kann man über Dein Projekt mehr erfahren? Weiß ja das Du nur mit was vor die Tür gehst wenn es dann auch funktioniert und klingt.
Zitieren

#16
Zitat:Der hat zu Versuchszwecken den SPH-220HQ einfach Fullrange betrieben und den Hochtöner nur mit 6 dB angekoppelt haben. Soll verblüffend gut geklungen haben.
Jupp, war so. Hab' einfach mal den Tieftöner an den Verstärker gehängt, Klang richtig gut, nur zu wenig Höhen. Das Erste, was mir in die Finger fiel war ein 1,5µF. Ran an den Hochtöner und das Ganze parallel zum Tieftöner. Hab' ich dann den ganzen Abend mit gehört. Nicht völlig richtig, aber durchaus mit Spaßfaktor. Quasi Breitband mit Superhochtöner. Frag' mal den Mat (nichtmeinabeustelle) oder den Michi (Oldie); die haben das auch gehört.

Ich finde ja, man ist als Lautsprecherschrauber mittlerweile viel zu technisch geworden. Man simuliert und misst zu viel und probiert zu wenig. Dabei macht das total Spaß und man kommt zu verblüffenden Effekten.

LG
Olli
[SIZE=2]"Die Tiefe ist rund" © Kaspie.[/SIZE]
[SIZE=2]
GLÜCK IST, WENN ES KEINE KATASTROPHE GIBT Big Grin
[/SIZE]

Zitieren

#17
hoschibill schrieb:... Nicht völlig richtig, aber durchaus mit Spaßfaktor. Quasi Breitband mit Superhochtöner....

Da muss ich Olli Recht geben, wir machen zu viel mit dem
Rechner. So mancher high-sofisticated Breitbänder-LS mit
doppelt bei Vollmond über die Schulter geworfenen vintage-
Kondensatoren klingt schlechter. Ich war echt verblüfft.:eek:

Mat
Zitieren

#18
Ich habe Olli auch ermuntert es mal mit so einer Purist Version zu versuchen. Es gibt viel mehr Leute als man glaubt die genau so etwas suchen. Warum also nicht. Ein völlig unbeschaltetes Chassis hat immer einen speziellen Charakter. Es wird wohl auch selten ein Chassis geben mit dem das besser ginge.
Zitieren

#19
hab jahrelang Westra KW 160 als Breitband mit RFT L 9811 an 4,7 µF betrieben, ging super und war extrem billig, RFT gab es bei Conrad für 7,5 DM, den Westra für 19 DM
Zitieren

#20
Hi Olli,

hoschibill schrieb:Man simuliert und misst zu viel und probiert zu wenig. Dabei macht das total Spaß und man kommt zu verblüffenden Effekten.

Da gebe ich dir Recht. Interessant ist dann aber trotzdem, NACH dem Hören zu messen und anhand der Messungen die Klangphänomene zu erklären.

Unterm Strich - so habe ich die Erfahrung gemacht - verliert man an Spaßboxen leider relativ schnell seine Freude. Langfristig machen hingegen die Lautsprecher am meisten Spaß, die am Anfang langweilig klingen.

Gruß, Christoph
Zitieren



Möglicherweise verwandte Themen…
Thema Verfasser Antworten Ansichten Letzter Beitrag
  Monacor Raduno - evtl. minimal abgewandelt Koaxfan 15 10.643 31.05.2022, 13:54
Letzter Beitrag: Jesse
  Neue Bauvorschläge von AOS - Satori, Bliesma, Volt etc, teilweise aktiv, 3 und 2 Wege Randalf 0 2.564 01.05.2022, 07:50
Letzter Beitrag: Randalf
  CT aus letztem Jahrtausend -viele kleine Chassis+1HT- ähnlich "Long Tall Sally"? Okulyt 17 5.596 08.09.2020, 13:03
Letzter Beitrag: Jesse
  Contra 2 - Neuer Hochtöner oder neue Weiche ? vintageliebhaber 34 25.658 12.05.2019, 12:08
Letzter Beitrag: vintageliebhaber
  Raduno von Monacor Hausmeister2000 63 42.676 30.04.2019, 08:33
Letzter Beitrag: Koaxfan
  Neues mit vorhandenen Gradient Chassis (BS/Quickly 28?) Andi2017 3 3.980 17.01.2018, 21:06
Letzter Beitrag: Andi2017
  Monacor Mirror RBT aka CT 268 / Cheap Trick 268 pulsar99 28 18.988 17.09.2017, 21:05
Letzter Beitrag: guzzi
  CT 239 chassis nicht mehr verfügbar, Ersatz? 1swift 1 2.261 15.09.2017, 11:40
Letzter Beitrag: Rotel_RA-980BX
  S: Drei-Weger mit Monacor DT 350NF krama1974 18 8.734 08.03.2017, 10:23
Letzter Beitrag: krama1974
  Monacor Menhir DSP Abstimmung WassermannSB 12 6.985 29.09.2016, 09:57
Letzter Beitrag: Space

Gehe zu:


Benutzer, die gerade dieses Thema anschauen:
1 Gast/Gäste

Deutsche Übersetzung: MyBB.de, Powered by MyBB, © 2002-2026 Melroy van den Berg.