» über uns

Onken.....ja, nein oder was?

Druckbare Version

  • 24.01.2017, 07:06
    Kalle
    Zitat:

    Zitat von Joern Beitrag anzeigen
    es rumort hier gerade im Kopf :denk:

    Moin Joern,
    mir geht es auch so.....von Isophon Hornreflex.........über Hans Deutsch....Onken.....Eckkanälen wie ehedem bei Seas und jetzt überall im PA-Bereich (eigentlich besser als Onken).......bis zur CB.......schwirrt mir alles durch den Kopf:D.
    Das Einzige, was absolut nicht in Frage kommt, ist ein Eckhorn.
    Wenn man mit Kanalquerschnitten spielt ist man, wenn man nicht aufpasst, blitzschnell bei einer TL angelangr:rolleyes:.
    Gruß Kalle
  • 24.01.2017, 17:07
    bg20
    mal ne dumme idee kalle ,du bist ja recht begeistert von den bg20 onken ,schon mal über eine doppel version nachgedacht
  • 24.01.2017, 19:40
    Kalle
    Jau, just heute.
    Ich habe noch ein Pärchen mit Magnet als Mitteltöner in einer Dreiwegebox ......seit 34 Jahren habe ich jetzt die Ohren voll und werde die Kästen entsorgen. Die Gehäuse lassen sich schnell und preiswert erstellen....man könnte dann stacken:cool: und braucht keinen Ständer mehr..
    Gruß kalle
  • 30.01.2017, 14:30
    lhorn
    Hallo Kalle,

    ich bin gerade über die Titelseite einer älteren HobbyHifi gestolpert: In Ausgabe 06/08 wurden wohl Berechnungsgrundlagen für Hornreflex vorgestellt. Kennst Du diese schon?

    Viele Grüße,

    Ludwig
  • 30.01.2017, 14:53
    Joern
    Zitat:

    Zitat von lhorn Beitrag anzeigen
    de über die Titelseite einer älteren HobbyHifi gestolpert: In Ausgabe 06/08 wurden wohl Berechnungsgrundlagen für Hornreflex vorgestellt.....

    Hi

    dabei ging es als Beispiel-Box um die Mivoc Wildcard
    http://www.lautsprechershop.de/index...i/zeit_hhi.htm
    die für ihre Größe mächtig loszottelt - hätte ich mir fast mal gebaut.
  • 11.11.2017, 15:16
    Kalle
    Moin,
    da Kaspie mich von meinen Altec-Type-Gehäusen befreien will ist Platz für Neues.
    Augenblicklich habe ich hier noch von 1982 ein Paar Audax HD33S66 hier liegen .... eigentlich sollte es damals wie heute auch ein 15er werden:D.
    http://i62.tinypic.com/1j94bb.jpg
    Eine Gummisicke hat er Ende der 90er irgenwo bei irgendwem im Süden bekommen. Die papiermembran habe ich mit dem Visationszeug beschichtet, weil die Oberfläche durch UV-Strahlung auffaserte.
    Ich habe jetzt die verschiedenen Gehäuse mit dem Audax und auch dem FaitalPro 15PR400 durchgerechnet.
    Mit der MiniOnken bleibe ich mit dem 12 Zoll Audax und Volumenvergrößerung innen durch dünnere Wände (88 l)bei 50/50Hz, Tuning und -3db-Frequenz hängen. Nicht schlecht für so ein handliches Kästchen:rolleyes:.
    Das nächst größere Gehäuse ist die PetitOnken von Jaques Mahul mit 123 l.
    http://cyrille.pinton.free.fr/electr...bleu_AUDAX.pdf runterscollen
    Mit dem Audax kämen ich hier in totaler:danke: Fehlanpassung:cool: auf 42/42Hz und cirka 95 db, im gleichen Gehäuse käme der Faital auf 96db und 41/47Hz.
    Zur Zeit neige ich dazu dieses Gehäuse anzugehen ..... um Außenvolumen und vor allem Gewicht zu sparen, die 70 winken mir schon zu:(, werde ich an den Seitenwände je 9 mm Multiplex und ansonsten 15mm Kieferkistensperrholz vorsehen.
    Kanalresonanzdämpfung lass ich wahrscheinlich erst einmal außen vor. Bei schraubbarer Schallwand bleibt dann der mögliche 15er Einsatz offen.
    Jrooß Kalle
  • 11.11.2017, 15:33
    Kalle
    Moin,
    da Kaspie mich von meinen Altec-Type-Gehäusen befreien will ist Platz für Neues.
    Augenblicklich habe ich hier noch von 1982 ein Paar Audax HD33S66 hier liegen .... eigentlich sollte es damals wie heute auch ein 15er werden:D.
    http://i62.tinypic.com/1j94bb.jpg
    Vor cirka 15 Jahren war dann die Foamsicke hin, Ersatz gab es damals nur als Gummi, beschichtet wurde er wegen der Oberflächenausfaserung durch UV Strahlung mit VS-LTS50.
    Ich habe jetzt die verschiedenen Gehäuse mit dem Audax und auch dem FaitalPro 15PR400 durchgerechnet.
    Mit der MiniOnken bleibe ich mit dem 12 Zoll Audax und Volumenvergrößerung innen durch dünnere Wände (88 l)bei 50/50Hz, Tuning und -3db-Frequenz hängen. Nicht schlecht für so ein handliches Kästchen:rolleyes:.
    Das nächst größere Gehäuse ist die PetitOnken von Jaques Mahul mit 123 l. Mit dem Audax kämen ich hier in totaler:danke: Fehlanpassung:cool: auf 42/42Hz und cirka 95 db, im gleichen Gehäuse käme der Faital auf 96db und 41/47Hz.
    Zur Zeit neige ich dazu dieses Gehäuse anzugehen ..... um Außenvolumen und vor allem Gewicht zu sparen, die 70 winken mir schon zu:(, werde ich an den Seitenwände je 9 mm Multiplex und ansonsten 15mm Kieferkistensperrholz vorsehen.
    Kanalresonanzdämpfung lass ich wahrscheinlich erst einmal außen vor. Bei schraubbarer Schallwand bleibt dann der mögliche 15er Einsatz offen.
    Jrooß Kalle
  • 19.12.2017, 17:03
    Kalle
    Moin,
    ich baue es gerade mal auf und bin neugierig, wie das 35 jahre alte Chassis sich so schlägt.
    https://abload.de/img/altecclown03s09.jpg
    Es geht deutlich tiefer als der TheBox ist dafür aber ein Tacken leiser, damuss ich den Hochtonbereich noch etwas zurücknehmen.
    Jrooß
  • 17.02.2018, 16:03
    Kalle
    Moin,
    in Bezug auf die Längenresonanzen im Reflexrohr oder in den Onkenkanälen habe ich endlich den lange gesuchten Grundlagenaufsatz von H.Schmidt und Karl-Heinz Fink aus dem Elrad Sonderheft Extra2 von 1984 gefunden.
    Bei den beschriebenen Bohrungen in der Kanalmitte muss der Kanal verländert werden. Die Tuningfrequenz muss um den Faktor 0,707 erniedrigt werden, das ergäbe anstatt der Tunigfrequenz von ungefähr 40 Hz eine von 30 Hz und damit eine Verdoppelung der Kanallänge .... was wohl kaum, z.B. 80cm anstatt 40 cm, umzusetzen ist.
    Gruß Kalle
  • 17.02.2018, 16:23
    holly65_MKII
    Moin Kalle

    Zitat:

    Zitat von Kalle Beitrag anzeigen
    in Bezug auf die Längenresonanzen im Reflexrohr oder in den Onkenkanälen habe ich endlich den lange gesuchten Grundlagenaufsatz von H.Schmidt und Karl-Heinz Fink aus dem Elrad Sonderheft Extra2 von 1984 gefunden.
    Bei den beschriebenen Bohrungen in der Kanalmitte muss der Kanal verländert werden. Die Tuningfrequenz muss um den Faktor 0,707 erniedrigt werden, das ergäbe anstatt der Tunigfrequenz von ungefähr 40 Hz eine von 30 Hz und damit eine Verdoppelung der Kanallänge .... was wohl kaum, z.B. 80cm anstatt 40 cm, umzusetzen ist.

    sach doch watt min Jung.....:D
    https://www.hifi-selbstbau.de/bauvor...u-74/331-marko

    Verdopplung (Faktor 2) der Kanallänge stimmt mEn nicht ganz - ich meine Faktor 1,4.....:)

    Irgendwo wurde im Zusammenhang mal über Rainers 1/4 Wellen Resonatoren gesprochen.
    Das wäre bei Onken (lange Kanäle) imho vorzuziehen.

    LG

    Karsten
  • 17.02.2018, 16:47
    Kalle
    TL-Resonator anstelle von Onken

    Hallo Karsten,
    die Zitate sind nahezu identisch mit dem von mir aufgeführtem Artikel.
    Wenn du die Helmholtzformel nimmst oder Berechnungsformeln zu Bassreflexboxen, wirst du feststellen, das die Multiplikation der Tuningfrequenz mit 0,707 zu doppelt so langen Rohren führt, probiere es aus. Die 1,4 wird verwendetals k- Faktor für TMLs und Bassreflexrohre, die außen bündig nach innen gehen, also der Normalfall.
    Ich kann mir das auch nicht so einfach vorstellen, denn die Anzahl bzw.der Querschnitt der Bohrungen hat ja auch mit der Effektivität der Maßnahme zu tun.
    Edit ... geht auch zu Fuß am Beispiel Helmholtzgenerator (ist übersichtlicher)
    https://abload.de/img/qurkss3sjl5.jpg
    Der Faktor ist also nicht ganz 2.
    Bei der Jaques Mahul Audax Onken bedeutet das bei 518cm² Fläche und 36 cm Länge nach dem Bohren eine Verländerung der Kanäle auf 62 cm. Das ergäbe hier den Faktor von 1,7.
    Für normale Onkengehäuse wäre das nicht sinnvoll.
    Wenn man jetzt einen vergleichbaren TL-Resonator einsetzt,vergleichbar mit einem 15er Bassreflexrohr, beträgt die Kanallänge in der Frontwandverdoppelung 14cm, mit Bohrung versehen 27 cm ... also doch beinahe Faktor 2.
    Allerdings wäre ein TL Resonator die bestechende Alternative zum Onken, allerdings nur die einseitige Lösung um den Bass bei einem Zweiwegesystem nicht zu sehr vom Mitspieler zu entfernen.
    Gruß Kalle
  • 27.02.2018, 19:36
    fosti
    Moin Kalle,

    zwar nur 12" aber passt zu Deinem "Breitmaulfrosch" und Onken? Die Schlitze an der Seite sehen "verdächtig" aus....
    http://audio-database.com/CORAL/speaker/x-viii.JPG
    Quelle: http://audio-database.com/CORAL/speaker/x-viii-e.html

    :prost:
  • 27.02.2018, 19:53
    Franky
    Sowas wie eine Ur-Menhir. Die Bässe haben übrigens Alnico Magnete. Für solche Chassis von TAD oder Fostex werden heute stattliche Summen verlangt. Mal gucken für was die weggehen.

    https://www.ebay.com/i/192458418275?rt=nc
  • 27.02.2018, 20:07
    fosti
    Uppala, ich glaube da würde ich eher die hier nehmen:
    https://fostexinternational.com/docs...pdf/w300a2.pdf
  • 27.02.2018, 20:18
    Franky
    Liste der Anhänge anzeigen (Anzahl: 1)
    Kann sein das der Fostex und auch der TAD auf die Coral zurückgehen. Mir hat das mal ein ehemaliger Entwickler von Visaton der die Ur Visaton Monitor entwickelt hat erzählt.
  • 27.02.2018, 20:23
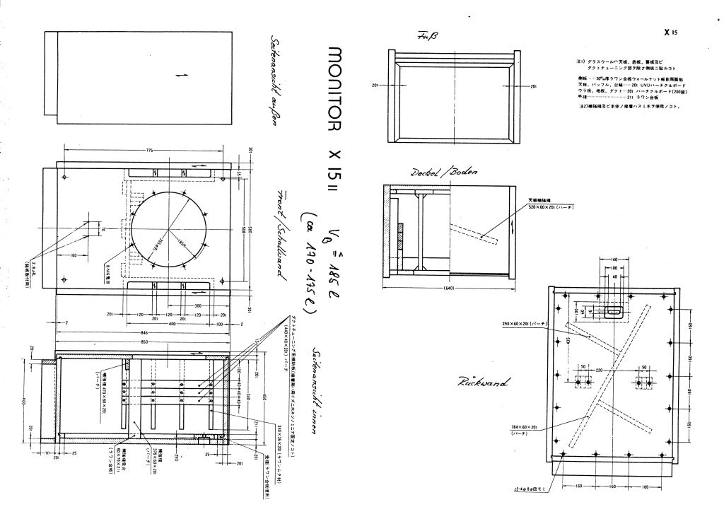
    Franky
    Liste der Anhänge anzeigen (Anzahl: 1)
    Hier noch ein DIY Plan der Coral X15
  • 27.02.2018, 20:44
    Kaspie
    Zitat:

    Zitat von Franky Beitrag anzeigen
    Kann sein das der Fostex und auch der TAD auf die Coral zurückgehen. Mir hat das mal ein ehemaliger Entwickler von Visaton der die Ur Visaton Monitor entwickelt hat erzählt.

    Fostex geht auf Coral zurück. Schau Dir die BK-Serie der BL-Hörner an. Visaton hat Coralen in ihren Produkten eingesetzt (Carmargue mit Coral 8F-60 bzw. Visaton TL8/C50F)
    TAD ist eher aus Altec Lansing oder deren Ingenieuren entstanden, die nach Pioneer abgewandert sind. Das Horn ist wiederum ein Smithhorn-ähnliches Konstrukt. Das wiederum ist JBL........
    Hängt also alles irgenwie recht eng verbunden miteinander zusammen?
  • 27.02.2018, 20:53
    KernGesunderBiertrinker
    Und die Coral x15 ähnelt stark der JBL L300...wie heißt es doch so schön?

    Denn das ist alles nur geklaut
    Das ist alles gar nicht meine
    Das ist alles nur geklaut
    Doch das weiß ich nur ganz alleine
    Das ist alles nur geklaut nur gestohlen
    Nur gezogen und geraubt
    Entschuldigung das hab ich mir erlaubt
  • 27.02.2018, 20:54
    Kalle
    Hallo Frank,
    das sieht ja mächtig interessant aus. Vor allem die drei 40mm breiten Leisten am Ende der Kanäle. Leider verstehe ich die Schriftzeichen nicht, aber ich kenne vielleicht jemanden, der mir da helfen kann. Mir stellen sich zwei Fragen. Boten die jeweils drei geschraubten Leisten die Möglichkeit einer Portabstimmung ... oder waren sie eventuell mit "Lücke" montiert, um Längsresonanzen den Garaus zu machen:confused:.
    Von Coral habe ich damals überhaupt nichts mitbekommen. Ich denke der damalige Visaton TL8/C50F ist wohl dort durch die Montage gelaufen wie auch das Hönchen TL16 nicht gerade nach Eigenproduktion aussehen.
    (Kai, das postende Lexikon war mal wieder schneller :) .

    Hallo Fosti,
    bei dicker Lippe ist mir just das hier über den Bildschirm gelaufen
    http://www.hifi-im-hinterhof.de/4367-paar-9029.html
    Ist State-of-the-Art mit Doppelringdiaphragma Hochtontreiber und Doppelmotorantrieb (Zwei Spulen, Zwei Luftspalte) im Bass.

    Hallo Tilman,
    jau, das kann man ja mit der JBL 1:1 umtauschen..... bei Vorbildern der X15 II sehe ich dann eher Altec.

    Jrooß Kalle
  • 27.02.2018, 21:26
    Kalle
    Da der Ausgangsthread sich nicht mehr ergänzen läßt, hier noch mal eine Aktualisierung.



    Moin,
    ich hatte schon vor Jahrzehnten vor, als ich mich in Audax PA-Lautsprechern verhörte;) , ein Onkengehäuse zu bauen....aber wie so oft führte der Platzbedarf zur üblichen doppelten Abflussrohrlösung, JBL ließ grüßen.
    Bei der Vorstellung des CT230 mit dem sehr brauchbaren BG20 griff ich zum Spielen die Idee wieder auf........die CT230 ist dann in folgendem zu einem Aurum-Klon mutiert.
    http://abload.de/img/goldonkelqfsxy.jpg
    Die Gehäusegröße und die Reflexabstimmung ließ eine Verwendung der üblichen Bauform nicht zu, so dass aus den Kanälen kleine Hörner wurden, um Abstimmung und anderseits möglichst große 100% Kanalöffnung kombinieren zu können.
    In diesem Montageschritt kann man Abstimmung und Kanalform gut erkennen. Es wurde eine Onken-Hornreflex-Kombination. Mögliche Kanalresonanzen habe ich nie als störend empfunden.
    https://abload.de/img/bau4krxui.jpg
    Am fertigen Rohling kann man auch sehen, dass ich für die Seitenwände dünnes Sperrholz verwendet habe....die übliche Bauform mit doppelten 1Zoll Holzplatten könnte ich heute nicht mehr heben und meine Konstrukteursseele empfindet diese Design und design (amerik.) als Irrsinn.
    https://abload.de/img/bau6x3ugn.jpg
    Aktuell ist diese Thema gerade wieder durch Holgers Mini-Onken in der K&T 1/2017.
    Die Onken Hornrechnenprogramme belustigen mich, ich habe vor 30 Jahren mal alle damals bekannten Onkenkonstruktionen durchgerechnet und bin bei einer ganz simplen Bassreflexabstimmung zwischen die 40Hz bis 45Hz gelandet.
    Für mein aktuelles OLK-Projekt mit einem Zwölfzöller in einem Altec 614 bzw. 9849 Gehäuse gefällt mir aus praktischen Gründen die Form nicht mehr. Um auf Ohrhöhe zu kommen muss der Altectrümmer auf Ständern betrieben werden.
    https://abload.de/img/p10204137fucu.jpg
    Bei einem Bassgehäuse nach Onken könnte ich schmaler werden, 46cm Breite hat mein augenblickliches mod. McGee HL1018, und ohne Ständer auskommen.
    Die Trennfrequenz kann mit Celestion CDX1-1747 auf 900Hz gelegt werden.
    Mir schwebt ein Onkengehäuse in einer Leichtbauversion vor.
    Dabei möchte ich die Kanäle, wenn es die Abstimmung zulässt, wieder konisch als Hornreflex bauen, und oder mit mittleren Bohrungen oder Schlitz versehen um die Längenresonanzen zum Schweigen zu bringen, klar ist die benötigte Mehrlänge zum Erhalt der Abstimmfrequenz.

    Als Konstruktionen kenne ich Unterlagen der Größe nach sortiert vom:

    A. Mini-Onken von Jaques Mahul ( Fehler in der Zeichnung, Mittenabstand ist freier Abstand (Kanalfläche 78%) 74 l
    B. Petit Onken nach Hiraga mit 12 Zoll Bass (Kanalfläche 100%) 160 l
    C. Petit Onken von Jaques Mahul füt den 15er von Audax (Kanalfläche 65%) 123 l
    Petit Onken gibt es noch einige mod.
    D. Haut Onken (Kanalfläche 100%) 280 l
    E.
    Coral X-VII 175 l (Kanalfläche 30%)

    Quellen:
    Jaques Mahul (Focal, vorher Entwickler bei Audax)
    A. http://www.asrr.org/biblioteca/Revue...MINI/MINI.html
    C. http://cyrille.pinton.free.fr/electr...bleu_AUDAX.pdf
    Jean Hiraga (Journalist, Áudiophile)
    B. http://www.asrr.org/biblioteca/Revue...KEN/ONKEN.html
    D. https://fuer-eine-handvoll-watt.blog...an-hiraga.html
    Coral
    E. http://audio-database.com/CORAL/speaker/x-viii-e.html
    https://www.diy-hifi-forum.eu/forum/...8&d=1519759423

    Geworden ist es jetzt für mein Vorhaben der FaitalPRO 15PR400, mal sehen was wird. Vorerst landet er erst mal in ein Bassgehäuse aus Eigenproduktion von 1982:rolleyes:.

    Ich erbitte Kritik und Vorschläge, die dasThema noch weiterbringen. Dank an die, die mitmachen.

    Gruß Kalle
  • 27.02.2018, 21:51
    captain carot
    Mal aus Neugierde, das Düren bei Jülich?

    Ich hab schon ganz gute Erfahrungen mit Hornreflex gemacht, also ebenfalls großer Kanal, wenig Bewegung. Aber eher 1/4-1/5 Halsfläche und 1,5-2,3fache Halsfläche. Damit war der Anfangsquerschnitt nah an normalem Bassreflex, mach die Kanallängen deutlich handlicher.

    Muss das nicht nach Lehrbuch sein würd ich einfach auf ne praktikable Zwischenlösung setzen.:built:
  • 27.02.2018, 22:01
    Kalle
    Moin,
    Jülich, wo liegt Jülich:confused: Nöh, das ist das Düren zwischen Niederzier und Kreuzau:bye:.
    Mit Hornkehlen habe ich auch gute Erfahrungen gemacht, schon öfter:). https://abload.de/img/bau4krxui.jpg
    Lehrbücher, was ist das ... was nicht geht wird gefahren.
    Jrooß Kalle
  • 27.02.2018, 22:13
    newmir
    Zitat:

    Zitat von Kalle Beitrag anzeigen
    .......und oder mit mittleren Bohrungen oder Schlitz versehen um die Längenresonanzen zum Schweigen zu bringen, klar ist die benötigte Mehrlänge zum Erhalt der Abstimmfrequenz.

    ich finde ein IRR ja besser. Eben weil dabei keine Mehrlänge fällig wird. Die Resonanzen werden dabei auch noch in die falsche Richtung verschoben und ein IRR ist viel wirkungsvoller. Könntest Du unsichtbar in der gleichen Art wie die Öffnungen integrieren. Ist aber kritischer mit der Abstimmung.
  • 27.02.2018, 22:27
    holly65_MKII
    Moin,

    Zitat:

    Zitat von newmir Beitrag anzeigen
    ich finde ein IRR ja besser. Eben weil dabei keine Mehrlänge fällig wird. Die Resonanzen werden dabei auch noch in die falsche Richtung verschoben und ein IRR ist viel wirkungsvoller. Könntest Du unsichtbar in der gleichen Art wie die Öffnungen integrieren. Ist aber kritischer mit der Abstimmung.

    vielleicht hört er Ja auf Dich......meine Anmerkung dazu ist irgendwie verpufft.....:D

    Zitat:

    Zitat von holly65_MKII Beitrag anzeigen
    Irgendwo wurde im Zusammenhang mal über Rainers 1/4 Wellen Resonatoren gesprochen.
    Das wäre bei Onken (lange Kanäle) imho vorzuziehen.

    LG

    Karsten
  • 27.02.2018, 22:38
    Kalle
    Zitat:

    Zitat von newmir Beitrag anzeigen
    ich finde ein IRR ja besser.

    Ich finde ein IRR einfach irre.
    Noch irrer fände ich allerdings, wenn du mir erklären würdest, was sich unter der Abkürzung IRR verstecken soll.

    Gruß Kalle
  • 27.02.2018, 22:53
    fosti
    Zitat:

    Zitat von Kalle Beitrag anzeigen
    ...Hallo Fosti,
    bei dicker Lippe ist mir just das hier über den Bildschirm gelaufen
    http://www.hifi-im-hinterhof.de/4367-paar-9029.html
    Ist State-of-the-Art mit Doppelringdiaphragma Hochtontreiber und Doppelmotorantrieb (Zwei Spulen, Zwei Luftspalte) im Bass.....

    Quasi eine "kleine" M2: https://jblsynthesis.com/productdetail/id-4367.html
  • 27.02.2018, 23:29
    Kalle
    Die Optik sagt mir zu:D, die Optik der M2 kann man doch nur durch einen schalldurchlässigen lichtundurchlässigen Vorhang optimieren. 1ch mag dieses Taubenblau der 43XX.... es passt zum Haus, Außentüren, Garage, Holzverkleidungen, Türrahmen:rolleyes:

    Jetzt weiß ich auch wieder, was mit "IRR" gemeint ist, was das allerdings mit Resonanzen in Bassreflex- oder Onkenkanälen zu tun habe soll, ist mir ein Rätsel, außer das es sich um Schwingungen von Gassäulen handelt.
    Erst geht es doch erst einmal in diesem Faden darum, Lautsprecher, Innenvolumen und Kanalformen des Resonators optimal abzustimmen, bevor man sich um störende Schwingungen im Innenraum kümmert. Oder meint ihr ein Dämpfungsrohr im Kanal.
    Ihr sprecht in Rätseln .... und wieso sollte das verpufft sein?
    Ihr säumt das Pferd irgendwie von hinten auf.

    Gruß Kalle
  • 28.02.2018, 07:50
    Kalle
    Lastenheft Onken
    Sorry, bevor jetzt noch mehr IRRes das Thema hier verfälscht.
    Es geht hier um historische Bauarten von Bassreflexgehäusen, deren Ziel es war, Basstreiber und Raum über spezielle Formen von Bassreflexkanälen so zu koppeln, dass eine möglichst optimale Basswiedergabe in erster Linie die Hörer und nicht die heutigen modernen Messinstrumentarien erfreut.
    Es geht hier nicht darum einen optimalen neutralen Studiomonitor zu entwickeln, der, das dürfte jedem klar sein, heute nur als aktive CB konzipiert werden sollte.
    Es geht hier darum Bassboxen zu bauen, die möglichst viel Spaß beim Musikhören bereiten und den Hauch von Nostalgie verströmen sollen, die vielleicht dabei auch selbst jenseits der Correctness ein bißchen Musik machen dürfen.
    Es dürfte mittlerweile jedem bekannt sein, der seine Ohrlöffel zum Hören und nicht zum Schuhe Anziehen benutzt, dass große Bassreflex- oder TML- oder Horn"Kanäle" eine Interaktion mit dem Hörraum eingehen.
    Deren Einfluss auf die Wiedergabe um Potenzen höher sind, als interne Boxenresonanzen, die nach außen dringen könnten.
    Natürlich sind Kanalresonanzen ein Thema, siehe auch ganz ganz oben, aber keinesfalls das Hauptthema dieses Threads und ganz bestimmt auch nicht der der Aküfi.
    Ach so Musik, das scheint vielen hier eine fremde Welt zu sein:(, ich habe hier noch keinen Bericht gelesen, wie die Bekämpfung von inneren Boxenreflexionen bei welchem Musikstück oder welcher Musikrichtung so eindeutig verbessert, dass diese Technik unverzichtbar wird.
    Ich lese hier eher Berichte, die angeblich Nachweisen, dass das Simulieren von Schallwandlern vollkommen ausreicht, um auf jedes Probehören bei der Entwicklung verzichten zu können.
    Das ist hier ebenso wie kleine Häkchen im Impedanzverlauf kein Thema.
    Hier geht es eher darum Spaß beim Musikhören, beim Bauen und beim Betrachten zu verspüren.:yahoo:
    Also laßt uns weiter in die Kanäle gucken und horchen ........ planen. sägen, kleben, schrauben, hören.

    Gruß Kalle
  • 28.02.2018, 08:27
    newmir
    DU wolltest Löcher in den BR Verlauf. Verderben diese Dir nicht den Spass am "natürlichen" Klang alter Boxen? Gab es das damals schon? Ich habe nur gesagt, dann nimm lieber gleich IRR (Interner Rohr Resonator) .... und zwar zu Bedämpfung von Rohrresonanzen ...... kann ich gerne noch genauer erläutern. Ich wollte keine Grundsatzdiskussion anstossen.
  • 28.02.2018, 08:33
    Kalle
    Hallo Michael,
    jau, gerne, ich bin da auch nicht betriebsblind, mir geht nur der Akufi und der Hype um den Internen Rohr Resonator ziemlich auf den Senkel.
    Jrooß Kalle
  • 28.02.2018, 09:41
    MOD eltipo
    Zitat:

    Zitat von Kalle Beitrag anzeigen
    Hiermit befreie ich dich von der Aufgabe meine Beiträge zu kontrollieren und zu bewerten.

    .

    Gang runter bitte.
  • 28.02.2018, 09:42
    Kalle
    Moin,
    natürlich ist CB die Lösung der Wahl.
    Aber ich bin nur ein dummer Rheinländer, der nur seinen Spaß haben will:D. Ich weiß, das ist in einem bierernsten Hobby-DIY-Forum mit ernsthaften wissenschaftlichen Ambitionen mit der Erbsünde behaftet und extrem verwerflicht.
    Jörn, Spaß kann man nur haben, wenn man bereit ist nicht alles zu ernst zu nehmen und die Kontrolle etwas schleifen läßt, einfach mal was aus lauter Freude am Tun und nicht an der Perfektion auch macht ... wie z.B. Fostis Hochzeitboxen.
    Mit der Pseudoonken BG20 habe ich schon jede Menge Spaß gehabt. Das möchte ich mit dem 15 Zöller auch.
    Einfach mal was nach etwas nachdenken und dann auch ausprobieren kann Spaß machen.
    Die aus Spaß der Ausprobierens gebauten Altec 614 Gehäuse funktionieren nach heutigen Maßstäben recht ordentlich, jetzt habe ich Freude an einer größeren Onkenkonstruktion.
    Kommentare zu Nordlichtern:p spare ich mir jetzt einmal.
    Ich will ja keine Schlägerei anstiften.:prost:
    Jrooß Kalle:engel:
  • 28.02.2018, 09:50
    rudi.s
    Hallo,zusammen
    Ich kenne und hatte viele alte und neue Konstruktionen. Ich sach mal,das Auge hört besser.
    DSP und simulationsprogramme sind zielführend wenn man die Ergebnisse auch richtig interpretieren kann.
  • 28.02.2018, 10:26
    Kalle
    Ach Jörn,
    ich bin ein alter Mann, alles, was mir noch bleibt sind Erinnerungen an die Jugend:(.
    Aber um mit den Stones, Popa Chubby oder ZZ-Topp abzurocken, sind neutrale Studimonitore nicht das Mittel der Wahl, da muss dann schon mal was hartes her, das 110 db locker ohne Stress in den Raum haut. Die viele der heutigen klassischen PA-Boxen sehen heute noch so aus, wie ehe dem aus dem Altec-Katalog geklaut. Wenn es um Lautstärke geht, sind große Reflexöffnungen unverzichtbar.
    Siehe hier bei Dieter Achenbach.
    http://lsv-achenbach.de/plaene/plan_sub18.htm
    Der Querschnitt und die Länge der Kanäle entsprechen ziemlich genau den Onkenspezifikartionen, Ersatzdurchmesser 25 cm und eine Länge bis 40 cm.
    Bestimmt ist diese Eckenanordnung die sinnvollste Onkenweiterentwicklung, nur ein Bassreflexsytem für zwei Wege nach diesen Maßen wäre sehr tief und müsste bangig hoch aufgeständert werden ... da scheint mir der letzte Coral Beitrag doch irgendwie praxistauglicher.
    Gruß Kalle
  • 28.02.2018, 10:46
    fosti
    Ja, sieht toll aus....man könnte sich aber erstmal den eigenen Hörraum anschauen und überlegen was da Sinn macht um Spaß zu haben, anstatt blind irgendwelche Konstrukte die (wie der Sub) nicht unbedingt für den Hausgebrauch entworfen wurden. Das ist doch der Vorteil von DIY :prost:
    Ist zwar nur meine Meinung, aber zu Hause macht CB entzerrt, mit einem oder mehreren weiteren Chassis (für den der nicht genug Schalldruck bekommt) mehr Sinn, als belüftete Gehäuse. Aber das sind ja keine Dogmen und jeder kann es sich selbst so schwierig machen, wie er will :D
    Meine Zeit ist mir zu knapp möglichst viel Holz zu zerspanen..... :built:
  • 28.02.2018, 10:51
    captain carot
    Die Eckports haben ja unter anderem auch stabilisierende Wirkung. Onken scheint ja auch recht stabile Seitenwände zu bieten.

    Auf der anderen Seite ist halt die Frage, ob überhaupt und wenn ja wo die Ankopplung an den Raum wirklich besser wird.

    Für die CoSaMo hatte ich das mal in HornResp durchgerödelt und bin am Ende auf ein Hornreflex mit riesigem Kanal gekommen, damit ich vllt. ein paar Hertz und dB rausbekomme. Plus Frequenzschweinereien. Bauen und vergleichen werd ich das Gehäuse wahrscheinlich mal irgendwann. Aber völlig nüchtern betrachtet sind die Vorteile allgemein gar nicht so groß.

    Die aktuellen Gehäuse haben sogar relativ kleine Reflexrohre, weil ich die aus richtig dicker Pappe da hatte. Waren unter 50cm² wenn ich das richtig im Kopf hab. Probleme bereiten die (kurzen) BR-Rohre im Heimbetrieb aber so gar nicht.

    Auf der anderen Seite hatte ich eben auch schon Hornreflexe und irgendwie haben die einfach was.

    Scheint übrigens dass du gar nicht so weit von mir weg wohnst, Kalle.
  • 28.02.2018, 10:57
    Kalle
    Nochmal:D,
    ich habe ein aktiv entzerrtes CB-basierten Monitor zu Hause in Betrieb. Mit gehr es beim Onken nur ums Spielen.
    Ansonsten durchhalten:p ... es lohnt sich:D.

    Jrooß Kalle
  • 28.02.2018, 11:01
    newmir
    Zitat:

    Zitat von Kalle Beitrag anzeigen
    ....... viele der heutigen klassischen PA-Boxen sehen heute noch so aus, wie ehedem aus dem Altec-Katalog geklaut. Wenn es um Lautstärke geht, sind große Reflexöffnungen unverzichtbar.

    Also da muss ich Dir jetzt nochmal wiedersprechen ..... Ich finde im PA Bereich sieht es mittlerweile ganz anders aus als damals, als wir jung waren. Klassische PA Boxen findet ich fast nur noch in Wohnzimmern und auf Kneipenkonzerten. Im PA-Bereich dominieren heute diese Line Array Türme und der Bass ist oft separat unter der Bühne versteckt. Und weil Grösse da fast völlig egal ist, würde ich den BR Gewinn dann auch mitnehmen. Aber klassisch ist das deswegen nicht. Aber irgendwas ist mir an diesen Line Arrays auch zu steril. Jetzt aber Schluss hiermit sonst gibt es einen Rüffel wegen OT.

    Ansonsten ...streite Dich nicht mit Nordlichtern über Spass. Der Rheinländer weiss ...jeder Jeck is anders.
  • 28.02.2018, 11:06
    captain carot
    Zitat:

    Zitat von Kalle Beitrag anzeigen
    Nochmal:D,
    ich habe ein aktiv entzerrtes CB-basierten Monitor zu Hause in Betrieb. Mit gehr es beim Onken nur ums Spielen.
    Ansonsten durchhalten:p ... es lohnt sich:D.

    Jrooß Kalle

    Hmm, das Spielen spricht aber doch nicht dagegen, mal zu gucken, in welche Richtung das passen könnte. Und da bietet sich Simulation heutzutage nunmal an.

    Gerade wenn es keine exakte Kopie von einem Konzept sein muss aber eben in Richtung der Onkens gehen soll.
  • 27.09.2018, 11:59
    Kalle
    Moin,
    der Faital ist gerade wieder etwas preiswerter.
    https://www.lautsprecherteile.de/Fai...er-400-W-8-Ohm
    Jrooß
Powered by vBadvanced CMPS v4.3.0